Paris (75012) - 14 - 20 boulevard Soult
Réhabilitation d'un ensemble immobilier de 479 logements
MAÎTRE D’OUVRAGE
ELOGIE – SIEMP

ARCHITECTE MANDATAIRE
SEPRA
ARCHITECTE CO-TRAITANT
CUADRA
BETs
PINGAT / ADCe
PROGRAMME
Réhabilitation d’un ensemble immobilier de 479 logement en milieu occupé
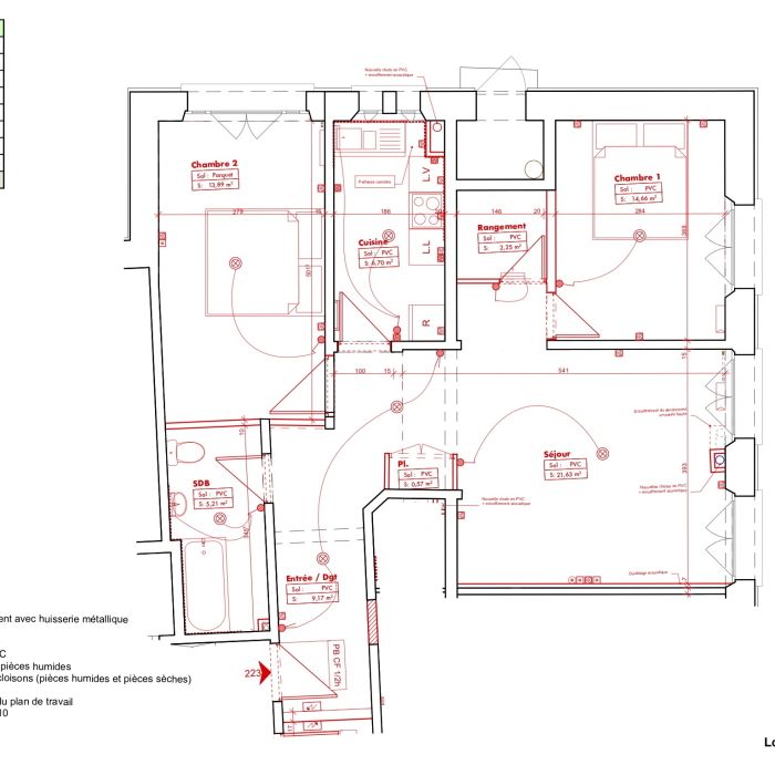
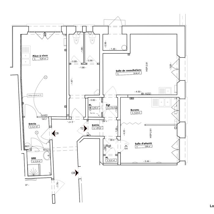
Création de 30 logements par regroupement de chambre de bonnes
Débitumisation du Site
Certification NF Habitat HQE – Plan Climat VdP
CEP : 155 kwh/m2.an (gain 35%)
NATURE DE LA MISSION
Mission de base loi MOP
SURFACE
23 000 m2 SHON
MONTANT DES TRAVAUX
21 500 000 € HT
Livraison décembre 2025 et mars 2026
Le contexte
Cette opération porte sur le groupe immobilier « Porte dorée » comprenant 470 logements, situé 14 à 20 boulevard Soult et 7 rue Ernest Lefébure 75012 PARIS.
Cet ensemble, constitué de 5 bâtiments, forme un îlot urbain le long du boulevard Soult. La construction fait partie de la famille des HBM, et en constitue un parfait exemple.
Ces immeubles à l’architecture très identifiable marquent fortement l’identité parisienne par leur présence tout le long des boulevards des Maréchaux, prenant la place des anciennes fortifications.
Le groupe « Porte dorée » reprend donc les codes urbains et architecturaux propres aux HBM :
– Composition d’ilot géométrique et dense, affirmant un front bâti sur le boulevard et les rues adjacentes, avec des percées visuelles vers le cœur d’ilot et marquant la symétrie d’ensemble
– Hauteur constante de bâtiment en R+7 / R+8, avec retraits successifs au dernier niveau et dans la hauteur des combles.
– Forte homogénéité d’ensemble des bâtiments : composition générale des façades, gabarit, matériaux mis en œuvre, toiture…
– Emploi de matériaux-type : brique et béton peint
– Verticalité et régularité des ouvertures…
-…
LE PROJET
Le programme des travaux porte sur la rénovation en milieu occupé de l’ensemble des logements, et la restructuration de chambres de bonnes en logements. Ces travaux d’aménagement intérieur, s’accompagnent de travaux touchant aux façades des bâtiments, aux toitures et aux espaces extérieurs.
Ravalement des façades
– Réparation et traitement hydrofuge des parties en brique
– Réfection des parties en béton avec finition par une peinture décorative
– Remplacement des menuiseries extérieures par des menuiseries en bois de type rénovation à double vitrage
– Pose de volets d’occultations complémentaires et remise à neuf des persiennes métalliques
– Remplacement des châssis d’escalier par des ensembles en acier, PF 1/2h, à profil aminci
Réfection des couvertures
– Réfection en zinc (cuivre à l’existant) des terrassons, avec isolation thermique des combles
– Réfection en ardoise avec ré-emploi à 75% des brisis et isolation thermique des rampants
Les aménagements extérieurs
– « Débitumisation » des espaces extérieurs et création d’ilots de fraicheur par plantations et végétalisation verticale
– Création d’abris vélos et mise en place de tri sélectif complémentaire
– Réfection des clôtures extérieures avec intégration esthétique du contrôle d’accès et motorisation des ouvrants
Les parties communes
– Déplacement et intégration des nouveaux réseaux concessionnaires et services généraux
– Mise aux normes d’accessibilité de l’éclairage et des aménagements de hall
– Travaux d’embellissement des cages d’escalier et des halls d’entrée avec traitement acoustique des espaces
– Amélioration de la sécurité incendie (désenfumage, châssis et portes palières coupe-feu, …)
Les logements
– Réfection complète des pièces humides
– Mise aux normes électriques
– Création d’un VMC (collecteurs dans logette vide ordures)
– Remplacement de toutes les chutes EU / EV et alimentations ECS
– Création de 30 logements par regroupement de chambres de bonnes
