Paris (75013) - 63 rue du Chevaleret
Construction en site occupé d'un foyer de 104 logements
MAÎTRE D’OUVRAGE
ADOMA
![]()
BET
BETEM
PROGRAMME
Construction en site occupé d’un foyer de 104 logements
RT 2012 – Plan Climat VdP – Certification H et E, profil A
CEp: 62 kWh ep/m2
PARTI CONSTRUCTIF
Procédé PANOBLOC (panneaux de façade préfabriqués à ossature bois et isolation intégrée)
Cabines préfabriquées traditionnelles trois fonctions
NATURE DE LA MISSION
Mission de base loi MOP
SURFACE
2 385 m2 SHON
MONTANT DES TRAVAUX
6 258 000 € TTC
Livraison Octobre 2016
LE CONTEXTE
Dans le cadre du « Plan de Traitement des Foyers de Travailleurs Migrants Parisiens », ADOMA prévoit la transformation de la résidence Senghor en résidence sociale.
La parcelle d’une superficie de 2 015 m² était occupée par un bâtiment de R+8 à l’alignement sur rue.
L’opération s’est déroulée en trois phases :
• Première phase, construction en cœur de parcelle d’un nouveau bâtiment regroupant 104 studios de type T1 et T1′ et d’un bâtiment modulaire temporaire regroupant les services nécessaires au fonctionnement de la résidence pendant les phases suivantes.
• Deuxième phase, démolition du bâtiment existant sur rue.
• Troisième phase, construction d’un nouveau bâtiment portant la capacité totale d’accueil à 330 logements.
LE PROJET
Le nouveau bâtiment construit en cœur de parcelle a dû respecter les règles du PLU vis-à-vis du bâtiment existant et ne pas grever le potentiel constructif du futur bâtiment sur rue.
Ceci a conduit à édifier le nouveau bâtiment sur les limites séparatives latérales et parallèlement à la limite séparative de fond de parcelle à 6 mètres de celle-ci pour bénéficier de vues principales. Le bâtiment est sensiblement parallèle à celui existant sur rue.
L’application des règles du PLU a donc amenée à un bâtiment à R+2 au plus bas et à R+5 + local technique en toiture au plus haut.
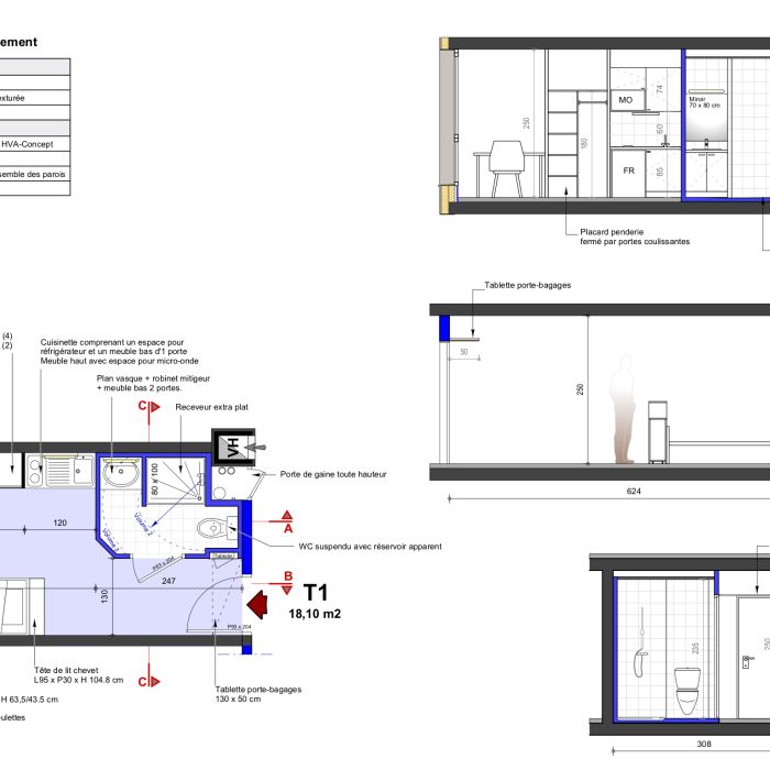
Le projet comprend 104 logements suivant la typologie : 78 x T1, 26 x T1′.
Concernant le traitement architectural, du fait de l’application des contraintes du site et du PLU, les deux façades principales sont dissemblables, lisse à l’Ouest et « plissée » à l’Est. Malgré ces différences, le traitement de ces façades s’est attaché à créer une unité d’image.
Les façades mettent en œuvre des panneaux de façade préfabriqués à ossature bois et isolation intégrée .
Extérieurement la finition est assurée par deux types de bardages, panneaux de résine haute densité type FUNDERMAX, et enduit sur panneau type STO VENTEC R sans joint, intérieurement par deux plaques de BA13.
Les menuiseries extérieures, en aluminium, sont équipées d’un volet pliant coulissant ou d’un volet roulant.
Une conception optimisée permet la création de 104 studios T1, T1′ et T1bis. Ceux-ci disposent d’une surface confortable, sont équipés d’une pièces d’eau avec lavabo, douche et wc et d’un coin cuisine.
La salle d’eau a fait l’objet d’une mise en œuvre spécifique, avec un procédé traditionnel préfabriqué.
Les locaux de vie commune, au RdC, donnent une qualité d’usage complémentaire aux occupants.
Tous les matériaux, de façade, en parties communes et parties privatives, ont été choisis dans un souci de grande pérennité, de facilité d’entretien, et de qualité d’usage.
Concernant les systèmes énergétiques, le chauffage est assuré par 3 pompes à chaleur à absorption gaz.
Le mode constructif, associant une structure béton, des façades préfabriquées en bois, des salles d’eau préfabriquées a permis la réalisation des travaux dans un délai réduit à 14 mois malgré un contexte urbain très contraint.
