Paris (75011) - 6 rue Spinoza
Restructuration d'une crèche 42 places
MAÎTRE D’OUVRAGE
CRESCENDO – Groupe SOS

BET
L’ARCHE
PROGRAMME
Restructuration d’une école en crèche de 42 places
NATURE DE LA MISSION
Mission de base loi MOP
SURFACE
375 m2 SHON
MONTANT DES TRAVAUX
910 653 € HT
Livraison janvier 2020
LE CONTEXTE
Le projet porte sur la transformation de l’école PERL en une crèche collective destinée à accueillir environ 45 enfants.
Le bâtiment existant comprend 4 niveaux (R+3) et un sous-sol partiel, et représente environ 400 m2.
Les locaux se développent dans l’immeuble principal sur cour, rue Spinoza, mais également dans une partie de l’immeuble mitoyen (R à R+2), boulevard Ménilmontant.
LE PROJET
Après curage et démolitions de tous les ouvrages intérieurs, le projet porte sur la restructuration complète des locaux, avec création d’un ascenseur.
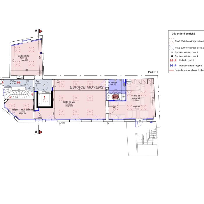
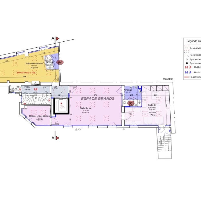
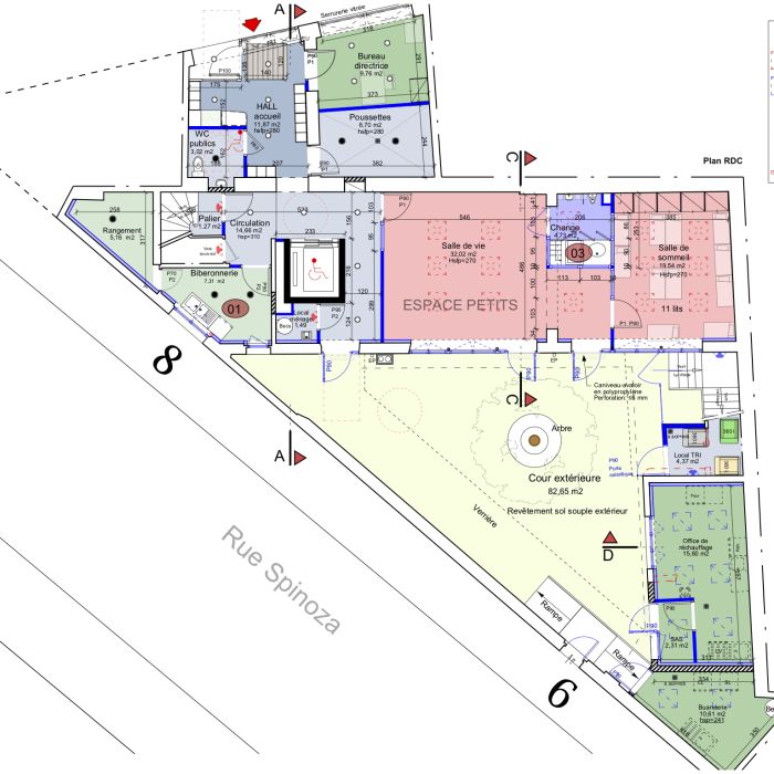
L’aménagement de la crèche dans le bâtiment comprend 3 sections: petits au RdC, moyens au 1er étage, grands au 2ème étage
Une grande cour accessible des locaux au RdC permet l’ensemble des activités de plein air des enfants.
Le programme des travaux implique aussi des travaux relatifs à l’enveloppe et l’aspect extérieur du bâtiment:
• Création d’une vitrine d’entrée de l’équipement
• Remplacement des menuiseries extérieures
A l’occasion du projet, toutes les menuiseries extérieures sont remplacées par des ensembles menuisés en bois peint en blanc, et en aluminium pour les portes fenêtres.
Le strict respect du cahier des charges de la DFPE et nos convictions nous ont guidé vers des prescriptions techniques rigoureuses, sécuritaires et pérennes.
Le choix des matériaux et teintes aux aspects naturels et doux apportent un sentiment de sérénité et d’apaisement aux enfants, et s’harmonise avec le mobilier nettement plus coloré des différentes sections
