Asnières-sur-Seine (92600) - 146 Avenue d'Argenteuil
Restructuration lourde d'un foyer en résidence sociale de 51 logements
MAÎTRE D’OUVRAGE
ADOMA

BET
L’ARCHE
PROGRAMME
Transformation d’un foyer en résidence sociales de 51 logements
Démarche HQE, obtention des CEE
CEP : 104 kwh/m2.an (gain 71%)
NATURE DE LA MISSION
Mission de base loi MOP
SURFACE
1 770 m2 SHON
MONTANT DES TRAVAUX
2 130 000 € HT
Livraison novembre 2021
LE CONTEXTE
Le projet porte sur la transformation de l’ancien foyer de La Poste situé à l’angle de l’avenue d’Argenteuil et de l’avenue Guillemin.
Cette résidence permet à de jeunes adultes de vivre une nouvelle étape dans leur parcours de vie.
Le bâtiment des années 1930 se situe dans un quartier résidentiel composé d’immeubles collectifs et de pavillons, et occupe plus de 80% de la parcelle.
Son gabarit de 6 étages sur rez-de-chaussée et sa position à l’angle des deux voies marque une présence forte vis-à-vis du bâti environnant, plus bas.
Le traitement du dernier étage avec son balcon filant supporté par des consoles massives offre une grande expressivité au bâtiment.
LE PROJET
La restructuration lourde du bâtiment s’accompagne d’un ravalement complet, du remplacement des menuiseries extérieures, et de la réfection de la toiture
Ravalement des façades
Le ravalement des façades ainsi que les teintes choisies visent à égayer l’immeuble, rendre plus lisible son élégance initiale, et l’inscrire dans le paysage urbain proche.
Les éléments de modénatures (appuis de baies, bandeaux filants, frises décoratives, balcon filant) sont mis en valeur par l’usage du blanc « pur » qui les distingue de la teinte en partie courante.
Réfection des toitures
Les toitures sont refaites à neuf: toiture à une pente en tuiles mécaniques sur le versant côté rue, et toiture mansardée avec terrasson en zinc et brisis en ardoise côté cour.
Menuiseries extérieures
Toutes les menuiseries extérieures sont remplacées par des menuiseries en aluminium laqué, et pourvues de volets roulants également en aluminium.
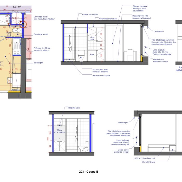
Afin de minimiser l’impact visuel du bandeau de volet roulant depuis la rue, un lambrequin en métal thermolaqué est installé en retombée de linteau.
Restructuration intérieure
Après curage complet du bâtiment, la restructuration optimisée permet la création de 54 studios T1, T1′ et T1bis. Ceux-ci disposent d’une surface confortable, sont équipés d’une pièces d’eau avec lavabo, douche et wc et d’un coin cuisine. Le confort thermique est également amélioré par la mise en place d’une isolation thermique intérieure permettant également de préserver l’image architecturale du bâtiment.
Les locaux de vie commune, au RdC, donnent une qualité d’usage complémentaire aux occupants.
Tous les matériaux, de façade, en parties communes et parties privatives, ont été choisis dans un souci de grande pérennité, de facilité d’entretien, et de qualité d’usage.
