Paris (75020) - 102 rue de Belleville
Réhabilitation de 42 logements
MAÎTRE D’OUVRAGE
RIVP

BET
L’ARCHE
PROGRAMME
Réhabilitation de 42 logements en milieu occupé
Certification NF Habitat, Label Rénovation 150
Plan Climat VdP
CEP : 102 kwh/m2.an (gain 66%)
NATURE DE LA MISSION
Mission de base loi MOP
SURFACE
1 690 m2 SHON
MONTANT DES TRAVAUX
1 930 000 € HT
Chantier en cours
LE CONTEXTE
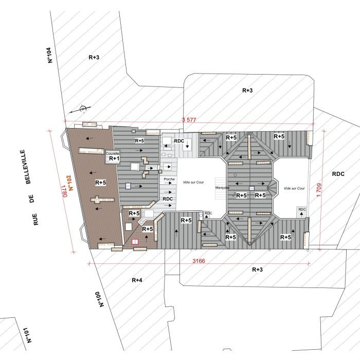
L’opération porte sur la réhabilitation en milieu occupé de 42 logements situés au 102, rue de Belleville dans le 20ème arrondissement.
L’immeuble, construit dans les années 1900, présente un caractère architectural certain, il est protégé à ce titre.
Les 42 logements totalisent une surface habitable de 1690 m2 et sont distribués par 3 cages d’escalier.
L’immeuble comprend aussi 4 locaux d’activités, et un sous-sol dans l’emprise du bâti.
La façade sur rue est très qualitative, avec un ordonnancement de façade classique et une composition en quasi symétrie ainsi que de nombreux détails très ouvragés: modénatures, linteaux de baies moulurés en pierre et brique, oriels en saillie sur consoles au R+1, calepinage de briques blanche et rouge…
LE PROJET
Dans le cadre de la réhabilitation de l’immeuble et du Plan Climat de la Ville de Paris, le programme prévoit les travaux suivants :
Façades :
– Ravalement de la façade en brique sur rue
– Isolation thermique par l’extérieur (ITE) des façades sur cours
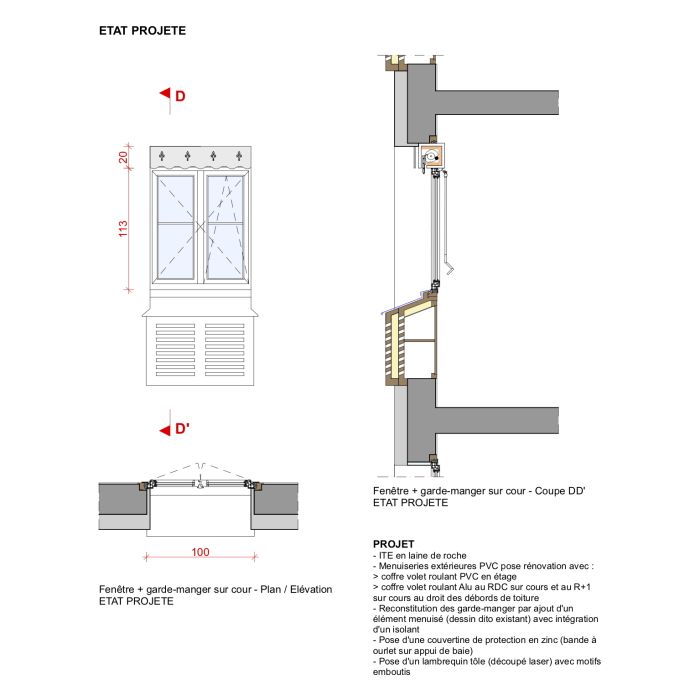
– Remplacement des menuiseries extérieures par des menuiseries bois sur rue et PVC côté cour.
– Mise en œuvre d’occultations extérieures: persiennes métalliques ou volets roulants avec lambrequins en tôle découpée et laquée.
– Sur les façades isolées sur cour, reconstitution à l’identique des garde-mangers en façade, des bandeaux et façons de joints creux
Logements :
Le programme de travaux est très complet dans les logements et comprend:
– Réfection complète des pièces humides avec création de VMC
– Remplacement des chutes EU/EV
– Mise aux normes électriques
– Mise en place d’une chaudière à condensation individuelle
– Remplacement des portes palières
