Dreux (28100)
Construction d'une maison d'enfants à caractère social
MAÎTRE D’OUVRAGE
LES APPRENTIS D’AUTEUIL

BET
BETEM
PROGRAMME
Construction d’une maison d’enfants à caractère social (40 logements)
PROCEDE CONSTRUCTIF
Modules préfabriqués en usine
Structure acier galvanisé, façade ossature bois
NATURE DE LA MISSION
Mission de base loi MOP
SURFACE
1 211 m2 SHON
MONTANT DES TRAVAUX
2 040 000 € TTC
PROJET
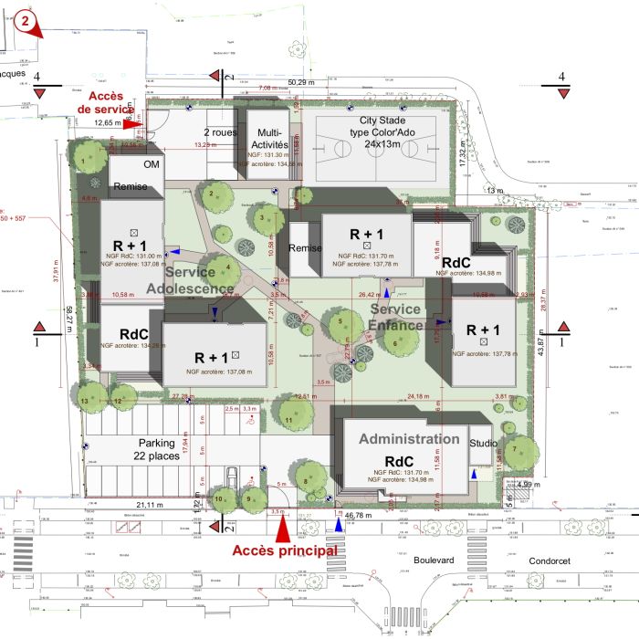
Le programme porte sur la réalisation d’une MECS, maison d’enfants à caractère social, dont la capacité d’accueil est de 42 places.
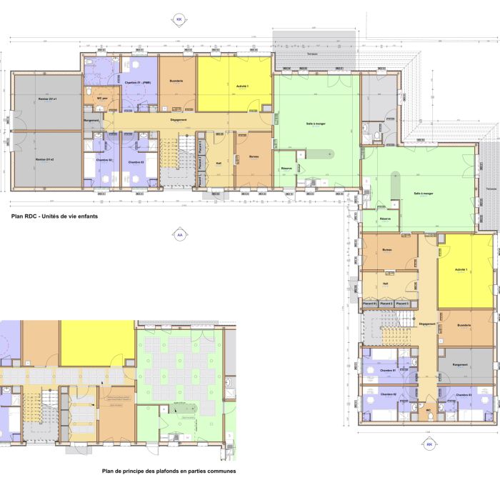
Il s’articule autour de 2 services (enfance et adolescence) comprenant chacun 2 unités de vie pour l’hébergement.
Chaque unité de vie regroupe +/- 10 chambres et des locaux de vie commune (cuisine, salle à manger, salles d’activités, buanderie…). Une remise, pour chaque unité de vie, complète cet ensemble fonctionnel.
Un logement indépendant (studio F1) permet un accueil familial ponctuel. Le pôle administratif comprend une dizaine de bureaux et salles de réunion.
Un espace multi-activités, comprenant 2 salles distinctes, permet la tenue d’évènements festifs et l’accueil de l’ensemble des résidents et familles.
Un stationnement sécurisé et une aire de jeux (City-stade) sont également demandés au programme.
L’organisation revue du projet est simple et rigoureuse, elle résulte d’un respect précis des contraintes du programme et des mises au point faites : surfaces unitaires, liaisons fonctionnelles, intimisation des chambres et locaux de vie, intérieurs et extérieurs.
Ecriture architecturale et matériaux
La volumétrie du projet est simple et rationnelle, et permet une lisibilité immédiate des fonctions qui y sont rattachées.
L’échelle du bâti est adaptée aux occupants, et renforce l’idée de lieu accueillant, apaisant et confortable. Les matériaux proposés participent également à cette impression générale : – Les façades sont constituées d’un bardage en bois (pin douglas classe 3b) lasuré de couleur chaude, et dont le sens de pose anime les volumes.
– Les menuiseries extérieures en PVC blanc sont soulignées par des encadrements métalliques laqués de 2 couleurs gaies (RAL 6001 et RAL 1021), au rythme aléatoire.
– Les entrées, différenciées par leur couleur et accompagnées par une faille verticale, identifient chaque unité de vie.
– Les terrasses extérieures, intimisées, bénéficient de brise-soleil régulant les apports caloriques.
Les choix techniques de construction
Le procédé constructif de l’ensemble des bâtiments est un assemblage de modules préfabriqués en usine (une chambre = un module), dont l’ossature est en acier galvanisé. Les modules sont liaisonnés entre eux, horizontalement et verticalement.
Ceux-ci arrivent sur site avec l’ensemble des revêtements et équipements intérieurs : parements de sols et murs, fluides, salles d’eau préfabriquées, menuiseries intérieures, …
Les murs de façades sont en ossature-bois, assemblée aux modules en usine, avec leurs menuiseries extérieures.
Les planchers sont en dalle béton industrialisé, avec isolation par laine de roche.
La toiture terrasse est constituée d’une membrane d’étanchéité autoprotégée.
Le bardage extérieur, en pin Douglas autoclavé et lasuré, est réalisé sur site.
L’association de ces différentes techniques industrielles et matériaux constitue un ensemble homogène, qualitatif, pérenne.
