Le Chesnay (78150) - 7 Impasse René Mouchotte
Construction de 40 logements locatifs
MAÎTRE D’OUVRAGE
IN’LI

BET
INGEMA
PROGRAMME
Construction de 40 logements locatifs
Certification BBC Effinergie Profil A
Restructuration – extension d’un foyer de 119 logements
Certification Patrimoine, H&E
NATURE DE LA MISSION
Mission de base loi MOP
SURFACE
3 115 m2 SHON – 3 143 m2 SHON
MONTANT DES TRAVAUX
5 543 000 €TTC + 5 079 000 €TTC
Livraison avril 2014
LE CONTEXTE
Le terrain se situe dans le quartier de « La Plaine Caruel », le long de l’ancienne impasse « René Mouchotte ». Site industriel à l’origine, bordé par l’aqueduc de l’Avre, ce quartier se caractérise maintenant par la présence d’immeubles d’habitation collectifs et d’équipements publics récents.
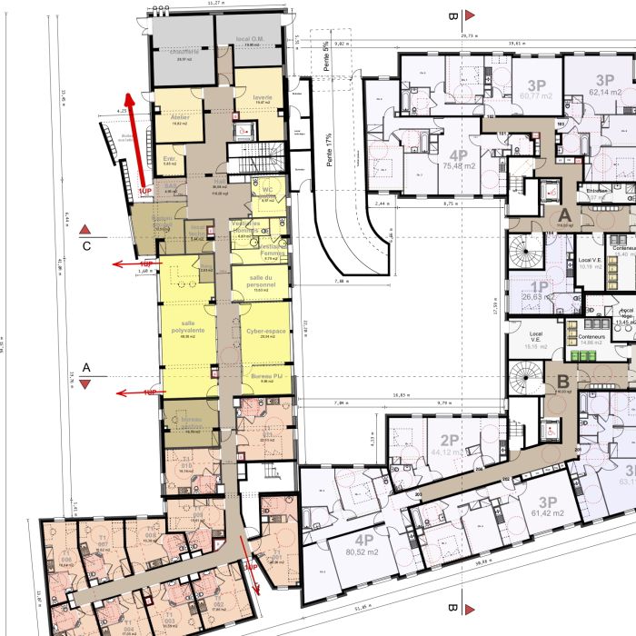
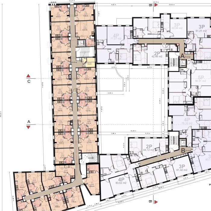
Le programme porte sur la transformation d’un foyer et la construction de logements collectifs, sur un niveau de sous-sol commun.
LE PROJET
Le projet a été étudié pour s’intégrer à ce nouveau quartier, en proposant un ensemble bâti homogène, donnant toutefois une identité propre à la résidence sociale et aux 40 logements.
Le projet est pensé comme un point d’articulation, une séquence entre deux quartiers :
– La plaine Caruel, avec ses équipements sportifs, sa vocation culturelle récente (la bibliothèque), son devenir (le réemploi complet du site Fenwick, anciennement occupé par les services techniques municipaux)
– Le quartier résidentiel et pavillonnaire menant jusqu’au quartier Saint Antoine
Longeant le site, la voie nouvelle permet une liaison douce et assure le passage de l’un à l’autre.
Le projet proposé, par ses matériaux notamment, assure la transition entre l’architecture contemporaine et réussie de la bibliothèque (bardage bois, béton lisse, serrurerie vitrée) et les bâtiments d’habitation (brique, enduit, balcons, …).
Le foyer de jeunes travailleurs
Par sa situation, la résidence sociale est perceptible depuis la voie nouvelle et la bibliothèque. Aussi, son pignon, très en vue, fait l’objet d’un traitement architectural spécifique, avec la mise en place d’un bardage en fibres de bois agglomérées de type TRESPA, les parties courantes recevant quant à elles, un enduit sur isolant. De plus, la façade principale sur entrée, exposée au Sud, s’anime à partir d’un jeu de panneaux coulissants assurant la protection solaire des logements.
Un soubassement, élément fédérateur en terre cuite, assure dans la hauteur du rez-de-chaussée, la continuité avec le programme de logements tout en faisant référence à un matériau, la brique, très présent dans les constructions environnantes.
Les logements
Les 40 logements s’organisent suivant un jeu de volumes :
– Les césures séquentielles en terrasses, créées au droit de la résidence sociale permettent la transition avec les parties couvertes en toitures
– Les retraits sur attiques reprennent un thème déjà présent sur le site
– Les volumes en saillies et les balcons animent les façades
De plus, l’emploi de matériaux aux textures et aux tons différents permet d’exprimer certains points singuliers du projet. Ainsi, le volume d’angle R + 4 et les différents volumes en saillies sont traités en bardage de pierre reconstituée, au contraire d’autres parties courantes de façade qui reçoivent un enduit sur isolant.
5ème façade
Une attention particulière a été portée sur le traitement des couvertures du projet :
– Volume construit: une couverture en zinc à joint debout, débordante, assure le couronnement des corps de bâtiment principaux et intègre une terrasse technique en décaissé. Les équipements techniques (caissons d’extraction…) sont ainsi dissimulés à la vue
– Volume restructuré (foyer): les installations techniques (PAC gaz et caissons VMC) sont masqués à la vue: bardage d’angle formant acrotère plein sur 1m de haut, puis écran métallique perforé en pourtour
– En transition entre les deux, les toitures terrasses sont végétalisées
• Caractéristiques performantielles en matière de consommation d’énergie :
– Certification (40 logements) : BBC Effinergie Profil A
– Certification (119 logements) : Patrimoine, Habitat et Environnement
