Asnières-sur-Seine (92600) - Avenue de la Redoute
Construction de 33 logements et d'un commerce
MAÎTRE D’OUVRAGE
OPH Hauts-de-Seine Habitat
![]()
BET
CODIBAT
PROGRAMME
Construction de 33 logements PLUS et d’un commerce
Certification H&E Profil A – Label BBC – RT 2012
Périmètre de rénovation urbaine « ANRU »
NATURE DE LA MISSION
Mission de base loi MOP après concours
SURFACE
2 814 m2 SHON
MONTANT DES TRAVAUX
5 626 000 € TTC
Livraison 2014
LE CONTEXTE
Le projet s’insère dans l’opération de Rénovation Urbaine des Hauts d’Asnières, et plus particulièrement dans le secteur de la Redoute Sud, le long de l’avenue de la Redoute.
Il accompagne la requalification de cette avenue, dont les travaux sont en cours (tramway, piste cyclable…), et la création à venir du mail piéton.
L’opération porte sur la création d’un bâtiment de 33 logements en R+6, d’un commerce en rez-de-chaussée et d’un parking en sous-sol de 36 places.
LE PROJET
Le projet respecte les recommandations architecturales, à travers une écriture résolument contemporaine, s’intégrant dans l’unité architecturale recherchée, tout en affirmant la spécificité du programme.
La façade sur l’avenue de la Redoute, qualifiant l’espace public, se veut très urbaine, continue et ordonnancée:
– Un registre vertical permet de décomposer les volumes et d’affirmer successivement le soubassement (effet de socle), le corps principal, le couronnement (effet d’attique pour partie, en retrait),
– les angles, très exposés le long du cheminement, font l’objet d’un marquage architectural très prononcé (effet de proue), et se retournent en pignons, eux aussi traités en véritables façades,
– des balcons-loggias ponctuent et animent les volumes, ils participent également au traitement spécifique des angles du bâtiment.
Le développé des façades sur jardin, à caractère plus « privatif », et exposé au Sud, offre plus de décrochements. Il s’inscrit toutefois par son traitement, dans la continuité des autres façades, restant très perceptible depuis le cheminement piéton
Le choix des matériaux et des éléments composants de façades permet d’affirmer le parti architectural tout en répondant aux exigences environnementales de la RT 2005 – bâtiment BBC.
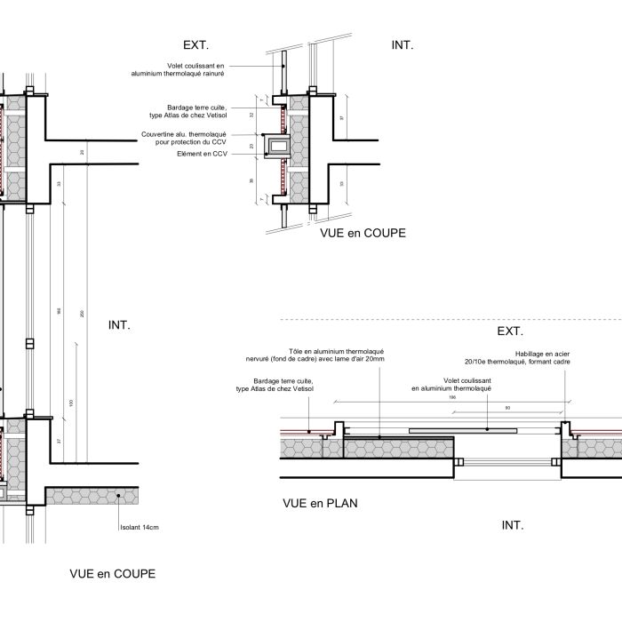
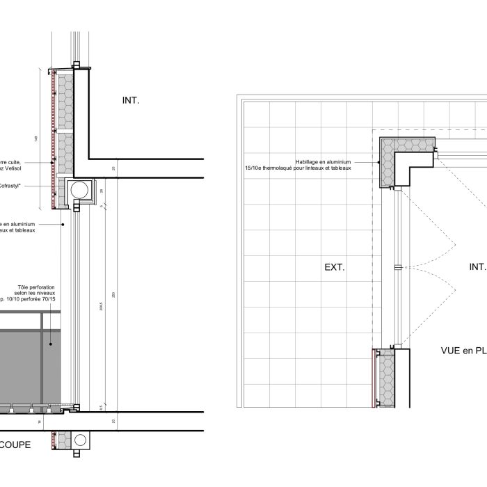
La terre cuite est le matériau majoritaire en façade principale sur l’avenue de la Redoute et en retours. Elle est utilisée sous forme de bardeaux (essentiellement de format 1,00 x 0,40), avec une isolation thermique extérieure.
S’y trouvent associées en plus faibles quantités, des parties enduites (enduit taloché fin de 2 teintes gris clair) sur isolant ainsi que des éléments de marquage en béton et résine CCV de couleur blanche (bandeaux et encadrements), qui permettent de rythmer et souligner les volumes et les façades.
Le rez-de-chaussée fait l’objet d’un traitement particulier : en béton structuré matricé de teinte grise, il permettra de bien affirmer « l’effet de socle » (un bandeau vitré en partie haute le « décollant » de l’étage), et garanti sa résistance aux chocs et aux incivilités (traitement anti-graffiti).
Les menuiseries extérieures sont en bois-aluminium thermolaqué de teinte gris foncé.
A l’exception des portes-fenêtres sur balcons équipées de volets roulants en aluminium de même teinte que les menuiseries, elles font l’objet d’une conception particulière et viennent s’insérer dans des cadres métalliques saillants de même teinte, intégrant également des panneaux d’occultation coulissants en aluminium de teinte vert d’eau.
Les balcons-loggias, qui participent à l’animation des façades, reçoivent des garde-corps en serrurerie thermolaqué de couleur grise, avec remplissage par tôle perforée. Le rythme et la dimension des perforations assure un dégradé de haut en bas; opaque en partie basse, plus transparente en partie haute.
A cet ensemble très minéral sera associé le traitement végétalisé des espaces extérieurs et des abords :
– en « tête de proue », à l’Ouest, une végétation dense formant écran au droit de l’accès aux locaux de service et au parking,
– en cœur d’îlot, au Sud-Est, un traitement paysager particulièrement soigné avec plantation d’arbres et d’arbustes à fleurs qui participeront depuis la rue au caractère résidentiel de l’immeuble.
