Savigny-le-Temple (77176) - 25 à 33 rue du Colonel Rémy
Réhabilitation de 71 logements
MAÎTRE D’OUVRAGE
VILOGIA

BET
L’ARCHE
PAYSAGISTE
François TRIBEL
PROGRAMME
Réhabilitation de 71 logements en milieu occupé
Certification NF Habitat, BBC Rénovation
CEP : 90 kwh/m2.an (gain 50%)
NATURE DE LA MISSION
Mission de base loi MOP
SURFACE
4 470 m2 SHON
MONTANT DES TRAVAUX
3 052 618 € HT
Livraison décembre 2022
PROJET
L’opération porte sur une résidence située 25 à 33 rue du colonel Rémy. Cet ensemble construit en 1990 regroupe 71 logements répartis sur 5 cages d’escalier et totalise une surface habitable de 4 470 m2.
Le gabarit à R+2 assure la transition entre le tissu pavillonnaire environnant et les artères de circulation principales.
Dans le cadre de la réhabilitation de l’immeuble, le programme prévoit les travaux suivants :
– Le ravalement de l’ensemble des façades avec mise en place d’une isolation thermique par l’extérieur et remplacement des menuiseries extérieures
– Les embellissements des parties communes
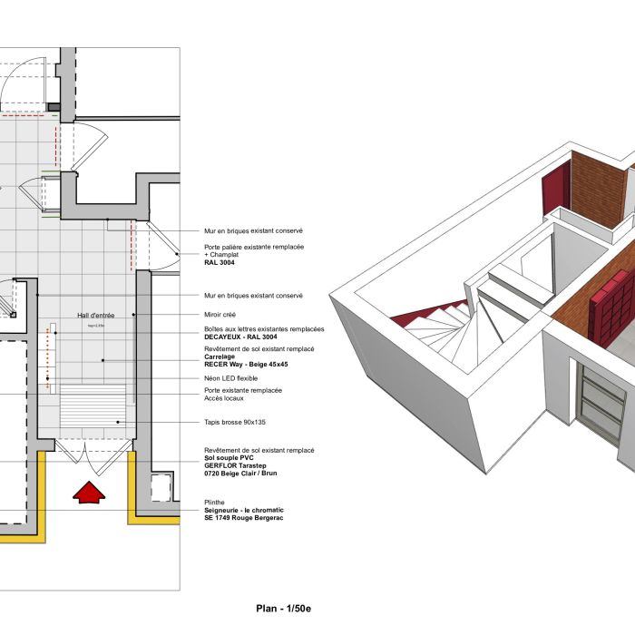
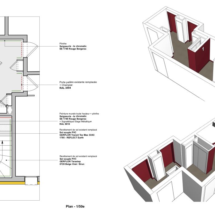
– La réhabilitation des logements (pièces humides, portes palières…)
– Le remaniement des espaces extérieurs avec résidentialisation de l’ensemble
• Le traitement de façade vise à casser la linéarité actuelle en jouant sur des ruptures dans le soubassement. Ainsi le principe actuel d’un soubassement en brique a été conservé tout en ménageant localement quelques interruptions visant à marquer des volumes, ou exprimer certaines entrées. Ces parties de soubassement sont couronnées par un bandeau saillant rapporté.
Localement une brique de parement plus claire est remontée jusqu’au R+2, notamment pour marquer les volumes en avancée couronnés d’une toiture terrasse, les entrées de hall, ou encore les quelques césures de façades.
Les parties courantes sont traitées en enduit taloché fin de teinte claire.
Les retours de baies en tableaux et linteaux sont réalisés en tôle d’aluminium thermolaquée dans les zones traitées en brique. Partout ailleurs, l’enduit de façade est retourné en tableaux et linteaux.
• Les espaces extérieurs, essentiellement situés côté rue du colonel Rémy, sont entièrement refaits:
– Réorganisation des circulations piétonnes avec formes de pente et mise en accessibilité PMR
– Réfection complète du parking
– Réfection des espaces verts et des plantations
– Aménagement de terrasses privatives et intimisées par éloignement des accès
– Mise en place de clôture en serrurerie et contrôle d’accès
– Installation de bornes de tri sélectif enterrées dans la parcelle
