PARIS (75009) - 27 rue d'Anjou
Réhabilitation de 18 logements
MAÎTRE D’OUVRAGE
RIVP

BET
L’ARCHE
PROGRAMME
Réhabilitation de 18 logements en milieu occupé
Certification NF Habitat – Plan Climat VdP
CEP : 195 kwh/m2.an (gain 26%)
NATURE DE LA MISSION
Mission de base loi MOP
SURFACE
1165m2 SHON
MONTANT DES TRAVAUX
1 238 210 € HT
Livraison 2025
LE CONTEXTE
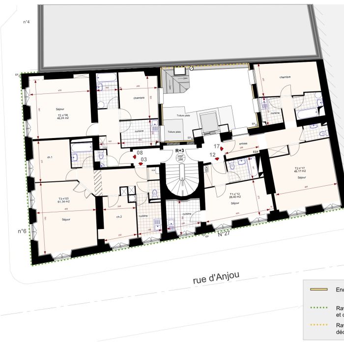
L’opération porte sur la réhabilitation en milieu occupé d’un immeuble d’habitation situé au 27 rue d’Anjou, dans le 8ème arrondissement.
L’ensemble en R+4+combles comprend 18 logements et 2 commerces au RdC.
Le bâtiment, construit à la fin du XIXème siècle, est très représentatif de l’habitat faubourien édifié entre les années 1870 et 1900 à Paris. Il en présente les principales qualités, et certaines pathologies fréquentes.
L’immeuble jouit d’une position à l’angle des rues d’Anjou et Ville d’Evêque, et développe ainsi ses 2 façades principales sur rue. Cette position privilégiée est accentuée par le retrait des immeubles mitoyens, qui mettent ainsi l’immeuble en exergue, mais dévoile partiellement ses 2 héberges.
Ces façades sur rue sont qualitatives, et possèdent un relief assez marqué et riche, et de nombreux éléments de décorations.
Sur cour, les 3 façades sont beaucoup plus sobres : seuls quelques bandeaux filants animent les façades, et les garde-corps présentent un dessin beaucoup plus basique.
La toiture est en zinc, avec une pente de l’ordre de 45°.
L’immeuble a fait l’objet, en 1996/1997, de lourds travaux de restructuration, durant lesquels un ascenseur extérieur a été créé dans la cour.
LE PROJET
Le projet comprend les points suivants :
Le ravalement des façades
– Ravalement façades sur rue avec enduits plâtre et chaux
– Ravalement façades sur cour avec enduit isolant aérogel FIXIT après dégarnissage complet de tous les enduits plâtre existants
– Remplacement des menuiseries extérieures (actuellement en PVC de type rénovation) par des châssis en bois, en pose neuve après dépose des dormants bois et PVC existants
– Remplacement des couvertines en zinc avec finition par bande à ourlet
– Pose de nouvelles persiennes métalliques (façades sur rue)
– Pose de volets battants en bois peints au dernier niveau (façades sur rue)
– Pose de volets roulants PVC en tableau dans la baie existante avec reconstitution d’un linteau maçonné afin de dissimuler les coffres (façades sur cour)
– Révision des garde-corps avec ajout de lisse complémentaire si nécessaire
Les travaux en toiture
– Réfection de la couverture en zinc à joints debouts
– Reprises et mise en peinture des lucarnes et souches de cheminées
La réfection des parties communes
– Réfection du plafond du hall d’entrée et mise en peinture
– Remplacement de l’éclairage
– Création d’un châssis d’accès à la toiture
– Reprises de structure au sous-sol et assainissement du sol
– Mise en sécurité électrique des parties communes
Les travaux dans les logements
– Remplacement des équipements sanitaires vétuste
– Remplacement des WC
– Remplacement des radiateurs
– Mise en sécurité électrique à minima des logements
