Paris (75020) - 107 - 109 rue des Pyrénées
Réhabilitation de 35 studios
MAÎTRE D’OUVRAGE
HENEO
![]()
BET
L’ARCHE
PROGRAMME
Réhabilitation de 35 logements en milieu occupé
Plan Climat VdP
NF Habitat Paris
Label HPE Rénovation
CEP : 169 kwh/m2.an (gain 60%)
NATURE DE LA MISSION
Mission de base loi MOP – Modélisation BIM
SURFACE
1 718 m2 SHON
MONTANT DES TRAVAUX
1 594 871 € HT
Livraison juillet 2023
LE CONTEXTE
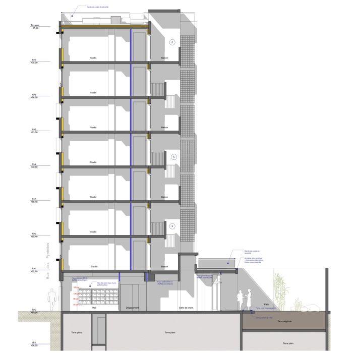
Le projet porte sur la réhabilitation d’une résidence para-hôtelière de 35 studios meublés située 107-109 rue des Pyrénées à Paris 20e; Le bâtiment a été construit en 1993 par l’architecte Olivier Chaslin.
Cet immeuble de 7 niveaux sur rez-de-chaussée occupe à rez-de-chaussée la quasi-totalité de la parcelle; L’organisation du plan d’étage courant s’exprime pleinement en façades et offre un contraste entre rue et cour.
Sur rue les logements animent la façade par le jeu des menuiseries extérieures, des balcons et bandeaux filants. Cette façade s’insère en transition des deux bâtiments voisins en offrant une sorte de synthèse.
Sur cour la façade habillant les circulations verticales et horizontales présente une image plus sobre, avec des volumes simples et une peinture décorative claire unifiant le tout.
Les matériaux mis en œuvre sont de trois sortes : pâte de verre dans la hauteur des allèges filantes, du rez- de-chaussée et de l’attique, enduit ocre rouge dans la hauteur des fenêtres, peinture décorative en fond de balcon et pour les bandeaux filants de modénature.
LE PROJET
Les travaux de traitement des façades et d’amélioration thermique comprennent :
– Le ravalement des façades
– Le remplacement des menuiseries extérieures (châssis aluminium avec volets intégrés)
– La réfection des toitures-terrasses avec renforcement de l’isolation thermique
– La pose d’isolants intérieurs performants
La restructuration des locaux communs au RdC et sous-sol permet d’améliorer les usages des de ces surfaces:
– Suppression du parking inutilisé pour création de locaux communs (local vélos, local conteneurs) et la création d’un espace de pleine terre.
– Végétalisation de la terrasse sur rez-de-chaussée
– Redistribution et extension de la salle de loisirs et de son office
– La mise en place de garde-corps de sécurité en périphérie des toitures-terrasses
La réalisation des travaux en opération-tiroir permet une réfection intérieure lourde des logements:
– Redistribution et réfection complète des salles d’eau et coin cuisine
– Remplacement des portes palières
– Réfection complète du mobilier intégré aux logements
– Réfection complète des installations électriques
Les installations techniques sont également concernées:
– Réfection des installations de VMC
– Réfection des réseaux ECS/EF/Chauffage
– Mise en place de pompes à chaleur (PAC) en toiture-terrasse pour la production d’eau chaude sanitaire
