PARIS (75020) - 35 rue Piat
Réhabilitation de 47 logements
MAÎTRE D’OUVRAGE
RIVP

BET
L’ARCHE
PROGRAMME
Réhabilitation de 47 logements en milieu occupé
Certification NF Habitat – Plan Climat VdP
CEP : 137 kwh/m2.an (gain 35%)
NATURE DE LA MISSION
Mission de base loi MOP
SURFACE
2532 m2 SHON
MONTANT DES TRAVAUX
3 513 146 € HT
Livraison octobre 2023
CONTEXTE
L’opération porte sur une réhabilitation lourde et complète en « opération-tiroir » inscrite dans le Plan Climat de la Ville de Paris.
L’immeuble se situe 35 rue Piat dans le 20ème arrondissement et comprend 47 logements et 4 locaux d’activités au RdC, sur cour et sur rue.
Il s’agit d’un bâtiment construit à la fin du XIXème siècle, représentatif de l’habitat faubourien édifié entre les années 1880 et 1910 à Paris.
La construction est assez dense dans la parcelle, avec 2 corps principaux en R+5, suivis de 2 ailes basses en R+2.
La façade sur rue possède un relief assez marqué et plusieurs éléments de décorations :
– Composition de façade en symétrie
– Ordonnancement de façade « classique » avec hiérarchisation des niveaux : RdC, entresol, 2ème étage « noble »…
– Couverture mansardée en ardoise et zinc
– Bandeaux moulurés filants à chaque niveau
– Porte d’entrée avec encadrement marqué et frise décorative
– Encadrements de baies moulurés avec garde-corps travaillés en serrurerie, mettant en valeur la composition de façade…
PROJET
Le projet s’inscrit dans une démarche qui répond aux enjeux du développement durable, grâce à l’emploi de matériaux bio-sourcés, l‘amélioration de la performance énergétique du bâtiment et la revalorisation d’un patrimoine architectural de la fin du XIXe.
La réhabilitation thermique comprend les travaux suivants :
– Ravalement et isolation des principales façades par un enduit thermique chaux-chanvre
– Réfection complète de certaines façades en pan de bois
– Isolation thermique (laine de roche) de certaines façades sur rue
– Isolation partielle en laine de bois
– Reconstitution à l’identique des bandeaux et modénatures
– Remplacement des menuiseries extérieures (bois et PVC)
– Mise en œuvre d’occultations extérieures: volets bois sur rue, volets roulants sur cour
– Réfection complète des couvertures en zinc avec mise en œuvre d’isolant thermique
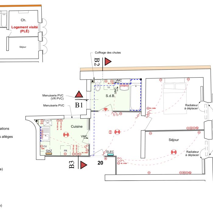
La réfection des logements est très complète:
– Réfection à neuf des pièces humides
– Isolation acoustique entre logements
– Mise en œuvre d’une ventilation mécanique contrôlée
– Remplacement des chutes EU-EV et alimentations EF
– Dans certains cas, réfection à neuf des pièces sèches
– Mise en conformité électrique
– Remplacement des portes palières
Les parties communes sont également requalifiées:
– Purge de tous les anciens réseaux
– Réfection des colonnes montantes, SG, courants faibles
– Mise en œuvre de faux-plafonds acoustiques
– Ponçage/vitrification des parquets, repose en ré-emploi des tommettes terre cuite
– Mise aux normes de sécurité (garde-corps, incendie)
– Réfection complète des peintures
– Remplacement du contrôle d’accès
