Asnières-sur-Seine (92600) - ZAC Bords de Seine
Construction d'une crèche de 60 places
MAÎTRE D’OUVRAGE
OPH Hauts-de-Seine Habitat
![]()
BET
EPDC
PROGRAMME
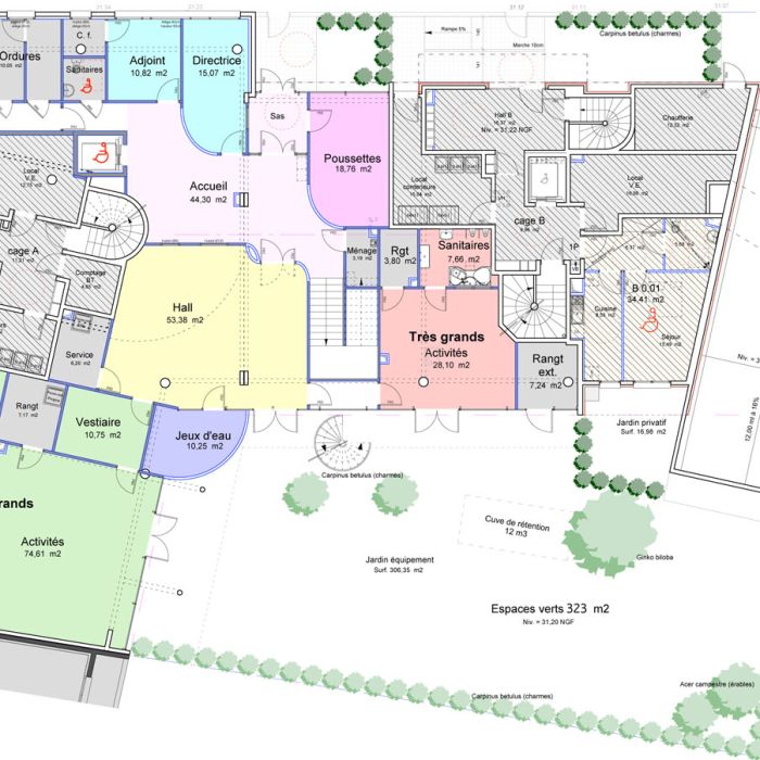
Construction d’une crèche de 60 places
Certification H&E Profil A – Label THPE
NATURE DE LA MISSION
Mission de base loi MOP après concours
SURFACE
4 666 m2 SHON
MONTANT DES TRAVAUX
1 614 000 € TTC
Livraison Crèche 2012
PROJET
Le projet vise à répondre aux objectifs de recomposition et de renouvellement urbain fixés par la ville d’Asnières, et à ce titre, propose une architecture contemporaine qui respecte les orientations et le vocabulaire architectural tel que défini dans le règlement de la Z.A.C. :
– L’immeuble présente un front bâti affirmé, en particulier à l’angle des deux voies, point fort de la composition que renforce l’écriture très marquée des balcons.
– D’une hauteur de R+6, l’immeuble se compose :
› d’un soubassement de deux niveaux permettant d’identifier clairement la présence de l’équipement de petite enfance tout en créant un effet de socle,
› d’un corps d’étages courants sur 4 niveaux
› d’un couronnement d’attique en damier niveau partiellement en retrait
– La composition des façades qui vise à renforcer le caractère traditionnel de « l »espace-rue » intègre également la notion de rythmes, les différences de nus, les balcons et les saillies participent à l’animation des volumes et évitent toute monotonie
– Une convention de cour commune permettra la création d’ouvertures sur le pignon sud-est, celui-ci recevant par ailleurs le matériau noble en grande propostion
– Un jeu de matériaux et de couleurs concoure également à la composition, l’utilisation d’un bardage en terre cuite étant par ailleurs une réponse au « face à face » avec les bâtiments d’activités de P.S.A.
